오늘 : 432
합계 : 596030
견적문의
견적문의 > 견적문의
견적문의 드립니다 덧글 1 | 조회 1,103 | 2016-07-20 18:59:13
소나무  

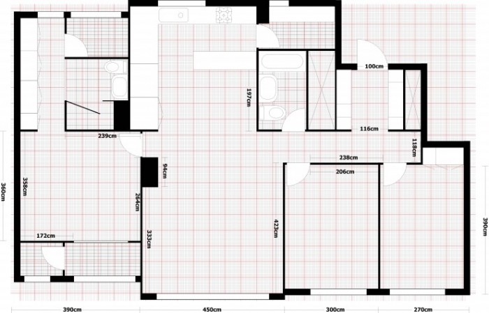
세종시 아파트이고요 현재 사람이 거주하고 있는 확장형 34평 아파트입니다.

- 냉방전용 견적과

- 냉난방겸용 견적 같이 부탁드립니다.

- 공사는 언제 정도 가능한지도 부탁드립니다.

- 방식은 단배관 방식 원합니다

 

 
토탈공조  2016-07-21 08:06:00 
비밀 덧글 입니다!